|
 |
| Großbeeren - Umschlaghalle mit viel Freifläche |
|
|
|
|
|
 |
 |
 |
|
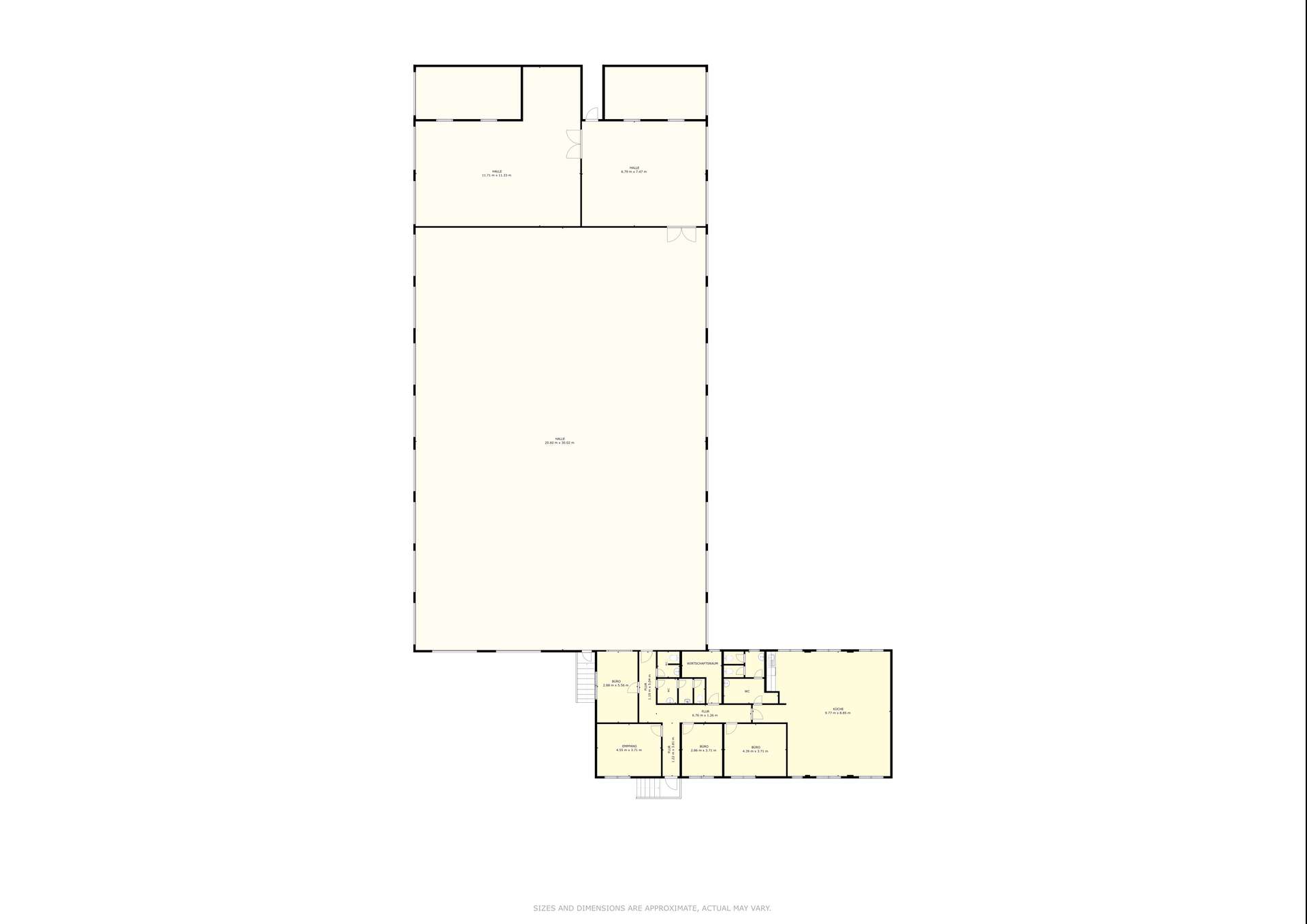
 | Großbeeren - Umschlaghalle mit viel Freifläche | 533 | Lagerhalle | Objektnummer 533 | | Gesamthalle: | 879 | | teilbar ab: | nein | | Höhe m: | ca. 5,50 | | Büroanteil: | 190 | | Tore: | mehrere Rampentore | | Boden: | Beton mit hoher Belastbarkeit | | Anlieferung: | alle LKW ohne Einschränkung | | Autobahn: | über B101 zur A10 | | Parkplätze: | große Anzahl möglich | | Ausstattung: | Rampe | | Zustand: | Gut | | Miete: | 6,50 EUR/m² Halle | | Nebenkosten: | zzgl. | | Provision: | provisionsfrei für den Mieter | | Merken |
|
|
 |
| Beschreibung: | Umschlaghalle Baujahr 1995 mit 22 Rampentoren auf großzügigem Grundstück, Grundstücksfläche 4.769 m², Halle 879 m², Büro- und Sozialräume 190 m², Moderne LED-Beleuchtung, Viele Steckdosen innen und außen, Große befestigte Freifläche, Ölheizung, 62,50 kWh/(m²·a), Energieverbrauchsausweis wird zur Besichtigung vorgelegt, Miete Halle 6,50 EUR/m² nettokalt, Miete Büro 8,50 EUR/m² nettokalt, Miete Freifläche 1,50 EUR/m² nettokalt.
| | Lage: | Nahe GVZ Großbeeren | | Ansprechpartner: | Michael Klepsch 030 / 21 00 01 50 0172 / 326 69 49 mk@immo-am.de |
|  |
Bilderserie  | | |
|
 | |
 | |
 | |
 | |
 | |
 | |
 |
 |
| Aufenthaltsraum mit Küche |
|
|
 | |
 | |
|
| |