Nahe Innovationszentrum Adlershof mit Anspruch auf Qualität
Objektnummer
Lage
Grössen
Nahe Innovationszentrum Adlershof mit Anspruch auf Qualität

Nahe Innovationszentrum Adlershof mit Anspruch auf Qualität | 331

Produktions-/Lagerhalle | Objektnummer 331
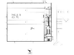
Gesamthalle:ca.4.710 m²
teilbar ab:nein
Höhe m:7,70 m
Büroanteil:inklusive ca. 945 m² Bürofläche
Tore:mehrere ebenerdige
Boden:Beton mit staubfreier Beschichtung
Anlieferung:LKW bis 40 Tonnen
Autobahn:ca. 1 km bis zur A 113
Parkplätze:Parkplätze möglich
Ausstattung:Heizung
Zustand:Top Zustand
Miete:10,00 € / m² zzgl.MwSt Mischmiete Büro - Halle
Nebenkosten:zzgl.NK
Provision:provisionsfrei für den Mieter
 Merken entfernen
Beschreibung:Moderne Neubauhalle für Produktion oder Lager Separater Büro-Pavillon lichtdurchflutet und sehr repräsentativ, 24 h Betrieb möglich, elektrische Sektionaltore, à 4,50 m x 4,50 m, separate Gasheizung, hochwertiger Zustand Ein Energieausweis liegt nicht vor, wird aber beantragt!
Lage:Berlin Treptow, Johannisthal
Verkehrsmittel:Busanbindung, Straßenbahn, 10 min zur S-Bahn
Sonstiges:Bodenbelastbarkeit 6.000 kp / m², beschichteter Betonboden
Ansprechpartner:Michael Klepsch 
 030 / 21 00 01 50  0172 / 326 69 49 
 mk@immo-am.de
Bilderserie
Lageplan
Zufahrtstraße
Sanitärräume
Büro über Halle
Halle aussen
Hallentor innen
Halle innen2
Grundriss